Willkommen in Ihrem neuen Zuhause in Tostedt!
In diesem 1-Zimmer-Appartement können Sie sich wohlfühlen – ein perfekter Rückzugsort für Singles!
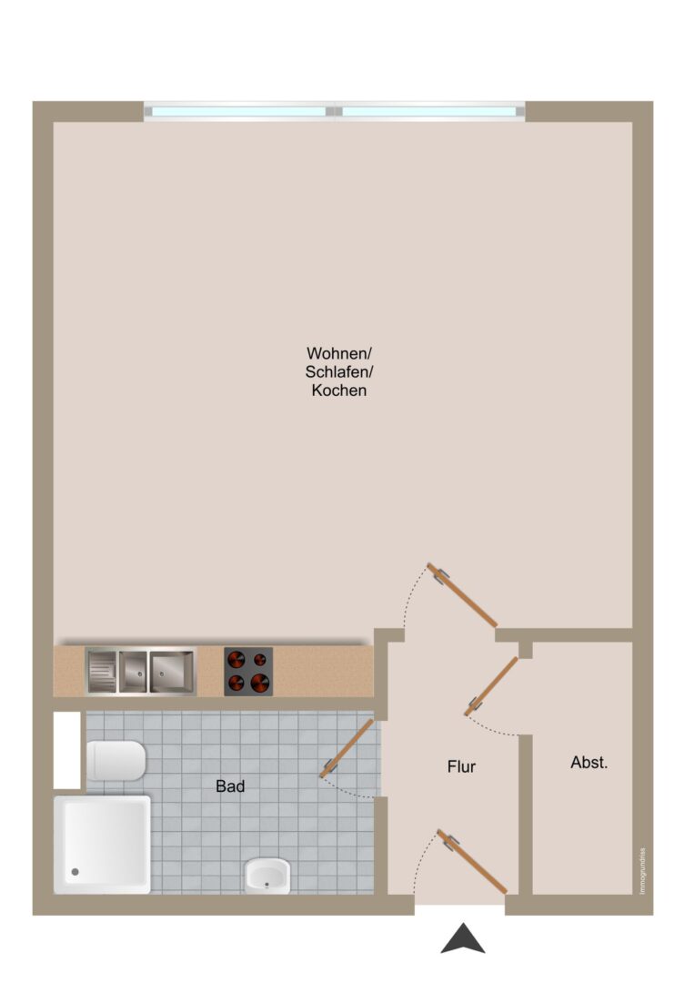
Beim Betreten der Wohnung fällt sofort der neu verlegte Vinylboden in moderner Holzoptik ins Auge, der ein warmes und einladendes Ambiente schafft. Die neu installierte Küchenzeile, ausgestattet mit modernen Elektrogeräten, ist ideal für Kochbegeisterte.
Den Wohn-/Schlafbereich können Sie sich nach Ihren Wünschen gemütlich einrichten. Das Badezimmer verfügt über WC, Waschbecken und Dusche. Ein praktischer Abstellraum für Staubsauger, Reinigungsmittel & Co. runden dieses Mietangebot ab.
Zusätzlich bietet ein eigener Kellerraum ausreichend Stauraum für Ihre persönlichen Gegenstände. Für Ihren Komfort stehen Ihnen zudem ein Waschraum mit Platz für Ihre eigene Waschmaschine, ein Carport-Stellplatz sowie ein Fahrradschuppen zur Verfügung.
Dieses 1-Zimmer-Appartement ist ideal für Singles, die Wert auf eine ruhige aber dennoch zentrale Wohnlage legen.
Stellen Sie eine schriftliche Anfrage und verabreden Sie mit uns einen persönlichen Besichtigungstermin. Wir freuen uns darauf, Sie kennenzulernen!





