Entdecken Sie Ihr neues Zuhause in Hollenstedt - ein charmantes Einfamilienhaus, das durch vielseitige Nutzungsmöglichkeiten besticht.
Dieses Haus mit dem Baujahr 1973 bietet auf ca. 143 m² Wohnfläche ausreichend Platz für die ganze Familie und beeindruckt durch seine durchdachte Raumaufteilung mit insgesamt rund sechs Zimmern. Die Immobilie befindet sich in einem guten baujahresgemäßen Zustand, mit handwerklichem Geschick und Manpower kann diese in neuem Glanz erstrahlen.
Im Erdgeschoss erwarten Sie ein großzügiges Wohnzimmer mit Essecke, eine Küche und ein Badezimmer mit Badewanne. Zwei weitere variabel gestaltbare Räume stehen Ihnen für individuelle Gestaltungsideen zur Verfügung. Im Dachgeschoss mit Dachschrägen finden Sie zwei gemütliche Schlafzimmer, einen kleineren Raum, der sich perfekt als Ankleidezimmer eignet sowie ein weiteres Bad mit Dusche.
Ein besonderes Highlight ist der Anbau (Baujahr 1994, ca. 28 m²), der ehemals als Wäscherei genutzt wurde. Wenn diese Fläche nicht als Wohnfläche genutzt werden soll, bietet der Anbau die idealen Voraussetzungen – auch aufgrund der Lage direkt an der Estetalstraße - für eine gewerbliche Nutzung, zum Beispiel als Friseursalon, kleines Ladengeschäft oder vielleicht als Nagelstudio.
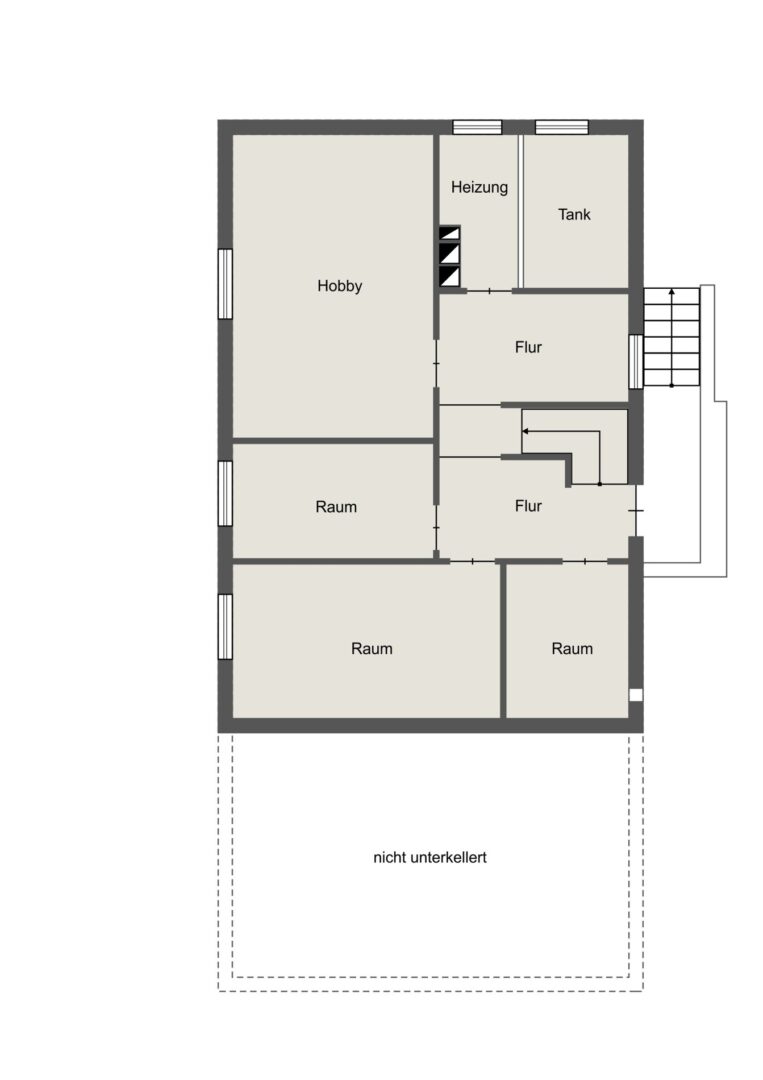
Das Kellergeschoss rundet das attraktive Angebot ab – mit drei Vorratsräumen, einem Heizungs- / Technikraum und einem dritten Badezimmer. Praktisch ist die Kellertreppe, die direkt in den Außenbereich führt.
Der pflegeleicht angelegte Garten auf 755 m² beeindruckt mit einem Carport, einem Geräteschuppen, einem Gewächshaus und einem kleinen Teich und verspricht mit seiner Gestaltung entspannte Stunden im Freien.
Dieses Einfamilienhaus in Hollenstedt vereint Wohnkomfort mit vielseitigen Möglichkeiten zur persönlichen Entfaltung. Stellen Sie eine schriftliche Anfrage und vereinbaren Sie einen Besichtigungstermin. Wir freuen uns darauf, Sie persönlich kennenzulernen.


























