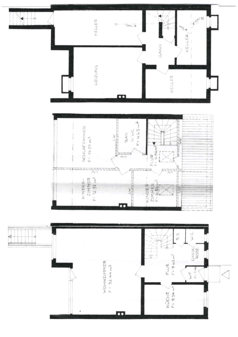
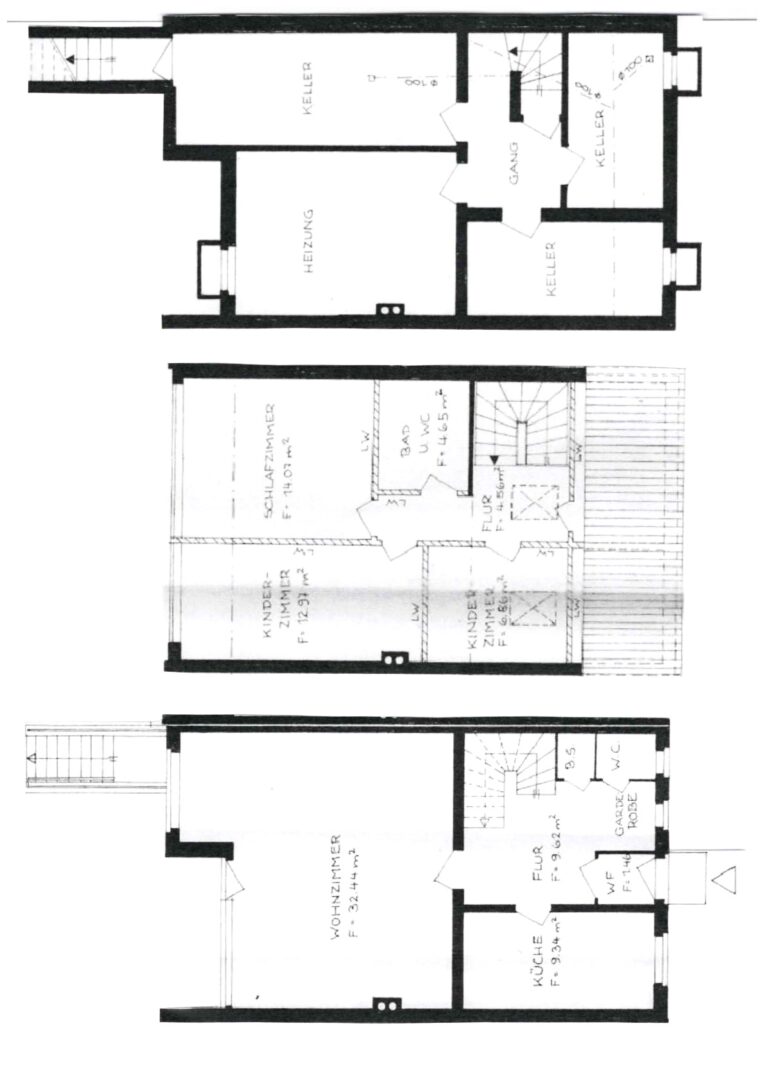
Schauen Sie sich dieses familienfreundliche Reiheneckhaus in Tostedt an! Es wurde im Jahr 1970 erbaut und bietet ca. 98 m² Wohnfläche aufgeteilt in 4 Zimmer, davon 3 Schlafzimmer, 1 Badezimmer und ein Gäste WC.
Das Haus ist renovierungsbedürftig, aber mit handwerklichem Geschick und frischen Ideen können Sie sich hier Ihren modernen Wohntraum schaffen. Der große Wohn-/Essbereich bietet Platz für eine kreative Raumplanung und die Küche kann offen gestaltet werden. Praktisch nicht nur für Ihre Gäste: das separate WC im Erdgeschoss. Für Staubsauger & Co. steht ein kleiner Abstellraum zur Verfügung.
Im Obergeschoss - Ihr Privatbereich - erwarten Sie 3 Zimmer sowie das Badezimmer mit Badewanne und WC.
Der voll unterkellerte Bereich bietet 3 Vorratsräume, einen Heizungsraum und einen Zugang zum Garten - ideal für die Aufbewahrung von Gartenmöbeln im Winter im warmen KG.
Das Highlight des Hauses ist u.a. der Garten, der auf 3 Seiten des Hauses angelegt ist und mit Beeten, Rasenflächen, Büschen und Sträuchern zum Entspannen und Wohlfühlen einlädt. Freuen Sie sich schon auf die ersten warmen Frühlingstage, an denen Sie auf der Terrasse mit der Familie und Freunden grillen können!
Ebenfalls gehört eine Garage zum Immobilienangebot.
Dieses Haus ist perfekt für Paare oder kleine Familien, die gerne selbst Hand anlegen und sich ein individuelles Zuhause schaffen möchten.
Stellen Sie eine schriftliche Anfrage und verabreden Sie im Anschluss einen Besichtigungstermin - wir freuen uns darauf, Sie kennenzulernen.
































